Eladó telek/földterület Tárkány 5 500 000 Ft

Leírás

Tárkányon Falusi Csok-os településen eladásra kínálunk egy építési telket!

Az eladó építési telek főbb jellemzői:

- elektromos áram telken belül mérőórával ellátott 16 A
- földgáz, csatorna, vezetékes ivóvíz telek előtt az utcában elérhető
- telek mérete: 881 nm
- beépíthetőség: 30 %
- részben lekerített

A teleken megvalósítható családi ház szerkezeti megkötés nélkül kivitelezhető.
Elhelyezkedése a központhoz kb 800 méter távolságra található.
A településen távolsági buszközlekedés áll a rendelkezésre.
Élelmiszer boltok, gyógyszertár, dohánybolt, általános iskola, posta, bölcsőde és óvoda illetve ruhás üzlet, kertészet és más egyéb szolgáltatók állnak a rendelkezésre a lakosság részére.

A telek rugalmasan megtekinthető időpontos egyeztetést követően!

Hitelügyintézésben szakértőként állok a rendelkezésére!


Várom hívását!

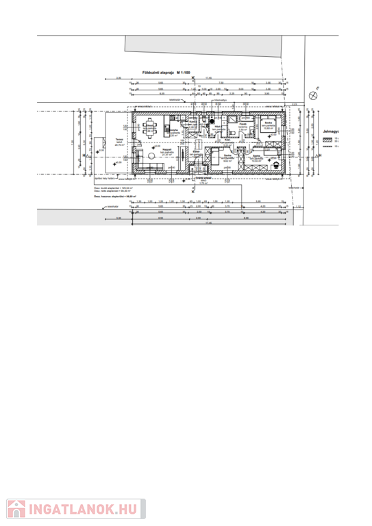
A hirdetésben szereplő adatok és alaprajz kizárólag tájékoztató jellegűek! Bővebb felvilágosítás az ingatlan személyes megtekintése során!

Telek/földterület részletei

Ár: 5 500 000 Ft
Méret: 881 Négyzetméter
Azonosító: 11557472
Irodai azonosító: 340370
Telek: 881 Négyzetméter
Jelleg: belterület